熱門資訊> 正文
2023-03-30 18:01
來源:東莞樂居
萬科瑧山匯(星河傳説二期)位於東莞黃旗山北部,配套成熟,主推約260-550㎡豪宅大平層,預計下半年入市。

萬科瑧山匯亮點:
生態資源豐富 坐享黃旗山脈
位於黃旗山北部,這里是東莞首屈一指的傳統富人區,周邊生態環境優越,居住舒適。
配套成熟 交通便利
樓下就是星河城,周邊緊鄰東莞城區核心成熟配套,交通四通八達,生活便利。
純改善豪宅盤 產品打造高端
項目1號樓高度接近250米,成功擠進東莞前十高樓排行榜,是黃旗北第一高樓,項目自帶底商,將擴大、豐富原有的星河城商圈格局,未來可創造更大商業價值。
適合人羣:萬科瑧山匯主推建面約260㎡-550㎡大平層產品,整體定位純改善豪宅盤。
價格分析:
東城目前無在售新盤,二手樓盤居多,且豪宅產品特別多,二手房價格分化嚴重。項目周邊有多個老牌豪宅小區環繞,譬如星河傳説、中信御園、天驕峰景、愉景花園等等,其中星河傳説別墅約8萬+,高層約5萬+,但該小區大平層掛牌數量較少,所以成交量並不高。
周邊老舊小區也有單價不到1萬的,不過多數都是老舊小區,樓齡都在15年以上,如果追求生活方便、配套成熟,預算又不太夠的情況下,可以挖一下周邊的筍盤。

新房稀缺的東城即將迎來一波供應,比較優質的純新盤有6個,地段優越,目前有3個待入市樓盤備受關注,分別是瑧山境、光大天驕國際和本項目,均為大平層豪宅產品,並且緊靠黃旗山,價格應該不相上下,敬請期待。
此外,東城還有高田城南印象、曉風印月花園和立新洋杞坑村舊改等項目待入市。

天貓評測師實地探盤看到,萬科瑧山匯目前施工建設中,暫時還沒有樓體出地面,據悉,項目預計下半年入市,吹風價約為5-6萬元/㎡(具體以官方消息爲準)。
點評:綜合來看,今年東莞核心區大平層井噴,萬科瑧灣匯、瑧山境、保利首鑄鷺灣、華潤悦府、光大天驕國際花園等品質項目陸續入市,萬科瑧山匯面對競爭壓力不小。

樓盤規劃描述:
星河傳説二期萬科瑧山匯位於東城東昇路與東城東路交匯處東南側,項目產品規劃有住宅、公寓、商業,包括3棟超高層,最高達245米,另外還有8棟商業裙樓,目前星河傳説二期已經正式以萬科瑧山匯作為案名。

根據最新規劃,項目總佔地面積474746.6平方米,總建築面積1180310.07平方米,綠地率38.5%,停車位6367個(地下停車位5549個),總户數4738户。
三棟超高層建築,140米、190米和245米,視野開闊,一覽黃旗山。

其中1號公寓、商業樓,共67層,樓高245米,1號樓低區每層三户,高區每層兩户,每一户都是獨梯入户對景玄關,總共有三種戶型,分別是低區的280㎡四房、390㎡四房以及高區的550㎡四房。
2號樓為住宅、公寓、商業樓,共53層,樓高193米,2號樓是小區中間樓棟,獨梯入户對景玄關,兩梯兩户,一種户型,380㎡四房,兩側對稱。
3號樓為住宅、公寓、商業樓,共40層,樓高140米,3號樓是小區最低樓棟,同樣是獨梯入户對景玄關,兩種户型,分別是兩側的290㎡三房以及260㎡四房。
4至11號樓為商業樓,除6號樓為4層外,其余都為3層。
户型分析:
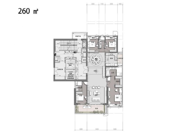
萬科瑧山匯主力户型有6種,分別為約260㎡的四房、約280㎡的三房、約290㎡的三房、約380㎡的四房、約390㎡的四房、約550㎡的四房。


260㎡的四房位於3號樓的中間位置,3號樓採用四梯(含貨梯)四户,每兩户共用兩梯。建面約260㎡的户型亮點:獨梯入户對景玄關、經典豎廳户型、少過道、高使用率、超尺度景觀陽臺等,經濟改善型首選。


面積約550㎡四房,1號樓高區四房户型,獨梯入户對景玄關,超展開主卧,功能齊全;公私區雙陽臺,270°無敵視野;沉浸式展廊,彰顯主人風采,還配有酒吧、茶吧以及超尺度方廳最大化滿足社交需求,可以説是平層「豪宅」。
交通出行:
軌道交通:項目直線距離東莞R2線東城站約1.3公里,2站到國貿即可換乘R1線(在建中),3站西平換乘莞惠城軌,5站至東莞火車站,9站虎門高鐵站;未來還將規劃6、7、11號等軌道快線途經,和東莞其它鎮街、深圳、廣州緊密相連。
公共交通:萬科瑧山匯周邊直線1公里範圍內有超20個公交站,樓下就是星河傳説站,公共交通極為便捷。目前有3、K1、K3、78、C1、L5、1、2、21等多路旅遊巴士經過(高埗至石井,人民公園至虎英公園)。
自駕:
萬科瑧山匯對外交通便捷,周邊有莞樟、莞龍道路及廣深、莞深高速公路,出入方便。
沿東昇路,往西接駁東城中路,能一路直達鴻福路商圈、東莞CBD;通過東城東路,接駁莞樟路能直達松山湖;直線距離約3公里,有東莞汽車客運東站。
周邊配套:
教育配套:項目約3公里範圍內幼兒園有機關幼兒園、金色未來幼兒園;中小學有附城小學、東城小學、東城中學、東城五小;高中有東莞市第二高級中學;大學有東莞理工學院、南開學院、外語外貿學院、城市學院、東莞高級技校等。
醫療配套:萬科瑧山匯直線距離3公里範圍內有東莞市東莞華醫院、東莞市婦幼保健院、東莞市人民醫院(普濟院區)等,為醫療需求提供了保障。
商業配套:
萬科瑧山匯樓下就是星河城,滿足業主日常所需,約1公里範圍內,還有十三碗美食廣場、東城萬達、世博廣場、金月灣廣場、新世界廣場、東城文化中心等,另有家樂福商場、好又多超市、百佳商場、時尚電器城、風情步行街、麥當勞、肯德基、KFC、鶴留山、東城酒吧街、一里洋場食街、雍華庭美食街等,周邊商業和居住氛圍濃厚。項目附近還有東城區政府、市圖書館東城分館、東城展覽館、東城國際酒店等綜合配套。

景觀資源:
萬科瑧山匯位於黃旗山北,板塊內小區南向直望黃旗「龍脈」山景,項目直線距離旗峰公園/虎英公園約750米,約3公里有峰景高爾夫球會,周邊生態環境優越,居住舒適。
測評:2023年東莞正式進入豪宅爆發期,不少優秀品質項目相繼入市,產品各有千秋,競爭激烈,吸引了不少頂級圈層的目光。萬科瑧山匯是高端改善型的豪宅產品,滿足高端剛改人羣的購房需求,想要在東城置業的改善羣體可以上車。